狂热火车这个称呼像节拍,描述铁路与公路交汇处跨线桥的紧凑推进。图文建造方法把现场动作、构件组合与图解指引放在同一画面,形成可执行的工作节奏。目标是让桥梁穿越干扰区,确保轨道运行不被长时间阻断。
规划阶段,团队梳理地质、荷载、轨道保护、排水与安全距离要点,形成可分段推进的路径。断面形态、支撑体系、模板布置在设计图与现场标记中保持一致,确保节点承载与对位在可控范围。
材料清单明确,钢筋、混凝土、模板、扣件、脚手架、起重设备等逐项列出。运输线路需避让铁路时段,现场照明、降尘与降噪方案嵌入日程,确保施工节拍。

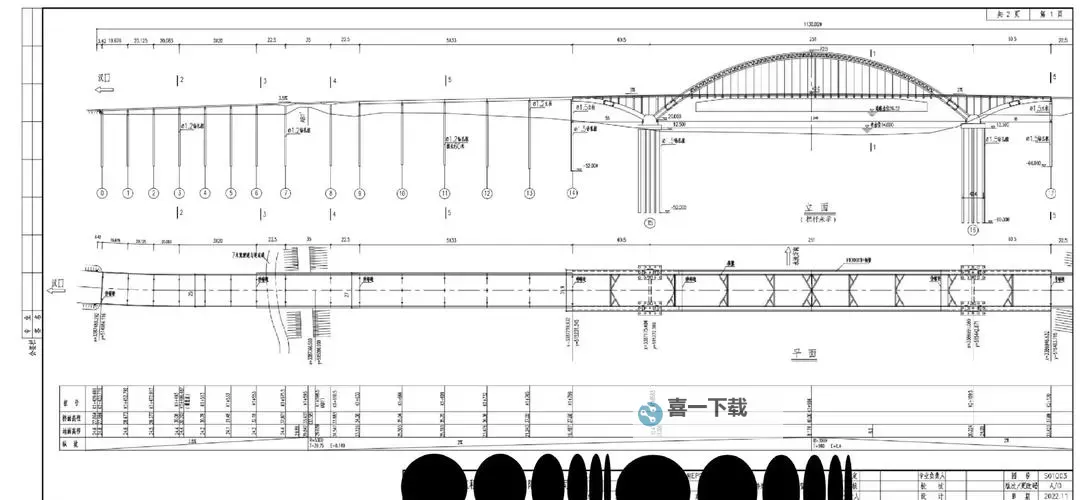
图文说明包含图示与短评。图1展现场测量点,图2揭示桥墩基底,图3呈现梁体拼接要点。每张图配注释,帮助工人理解尺寸、节点与连接方式。
基础施工强调基底处理与桩承台布置,设置监测点对照尺量。跨越活跃轨道时需临时防护、排水与沉降控制,确保长期稳定与列车安全。
梁体吊装与对位为核心。岸侧先搭临时桥台,梁段通过吊车与导轨落位,缝隙处采用合适的连接与锚固。定位线、螺栓布置和钢筋交错关系必须严格贴合设计。
安全体系覆盖现场与铁路方的联络。警戒区域、信号通讯、夜间照明与个人防护齐全,轨道暂停方案、应急预案以图表呈现,便于调度。
浇筑后分层养护,温湿度与养护期记录在案。模板脱模、表面护理、龟裂监测点用图例标注,确保跨线段平整无错位。竣工阶段形成图片与文字对照,便于验收与维护。